Stages of Evolution Retail Outlet

View complete stages

Stages of Evolution Retail Outlet

View complete stages

Ro Drawings & Documents For Approval

Stage 2
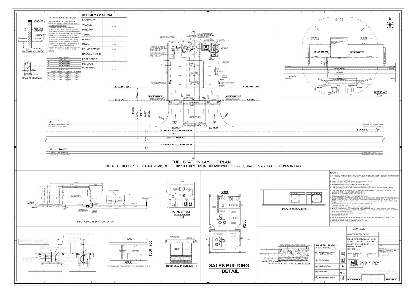
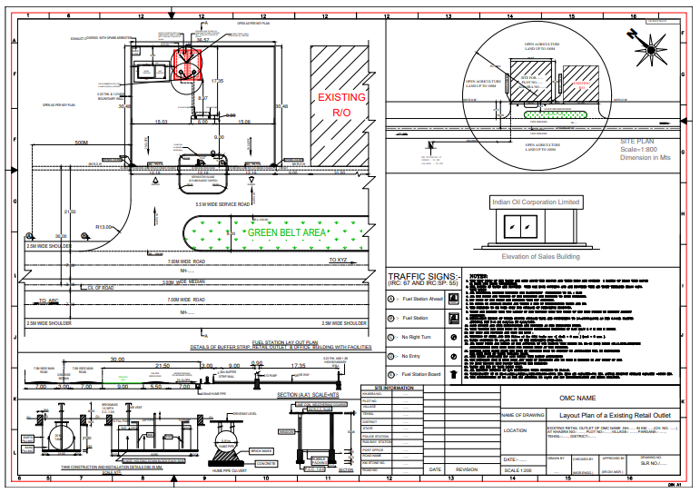
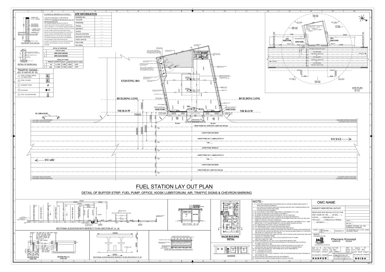
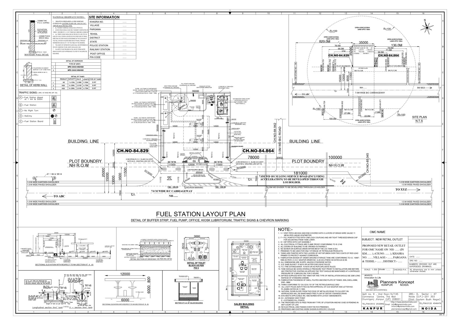
  1. Site survey by Architect / Engineer/ Consultant of Oil Marketing Company (OMC).
  2. Preparation the drawings as per site.
    • Layout Plan (e.g.- DM NOC drawing, PESO Drawing, NHAI Drawing, Forest Drawing and Other Drawings )
    • Drainage Plan
    • Location Plan / Strip Plan/ Key Plan
  3. Finalization of drawing preliminary.
  4. Preparation documents (NHAI/NH/ SH/State PWD) as per site.

Elevate Your Expertise to Achieve Your Ideal Retail Fuel Station

Unlock Limitless Access to Exclusive Features

Do you need any further support

Connect with us for the Architectural & Construction Services